漫画柜
漫画柜
院长信箱
党外人士建言献策信箱
主页
漫画柜概况
漫画柜简介
现任领导
媒体视角
实验教学
师资队伍
博士教授
专业教师
行政人员
学科科研
成果获奖
教师作品
本科教育
招生工作
专业设置
培养方案
认证专题
毕业设计作品
课程作品
研究生招生
招生动态
硕士点介绍
考研参考书
硕导风采
继续教育
教师培训
社会培训
思政教育
合作交流
校友动态
信息公开
漫画柜公告
规章制度
行政发文
党委发文
党委会纪要
党政联席会纪要
历年信息公开
下载专区
课表
学生名单
常用表格
资源下载
本科教育
2012届毕业作品
05美本
07专升本
05平面
05环艺
2013美术学
2013工业设计与艺术设计
2013服装设计
10届学生毕业创作展
05年毕业创作油画作品
04届学生毕业创作展
06届学生毕业创作展
热点信息
漫画柜 诚聘...
中共漫画柜 ...
漫画柜 2025年教职工...
关于2025-2026学年第一学期温...
幸福艺家44 | 漫画柜 开展“叶染...
漫画柜 党委书记刘青松带队走访...
05环艺
当前位置:
漫画柜
>
本科教育
>
毕业设计作品
>
05环艺
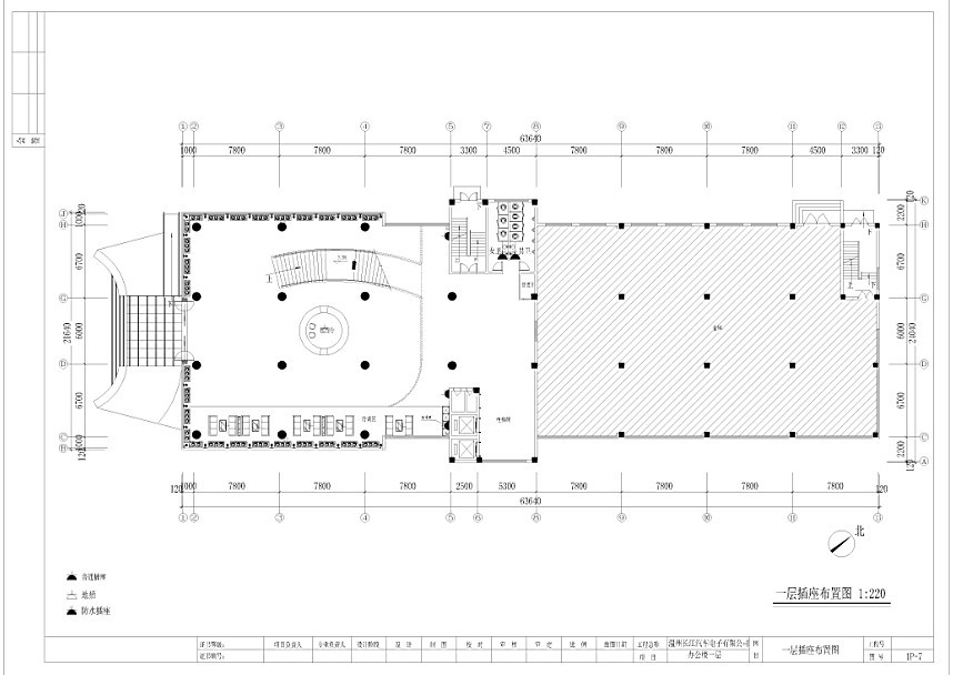
周云 长江一层插座布置图
发表时间:2010-03-24 编辑: 浏览量:次
上一篇:
何军 海景别墅
下一篇:没有了
[关闭本页]
[打印本页]
地址:温州市茶山高教园区 电话:0577-86689190 E-Mail:
[email protected]
版权所有 ©
漫画柜-漫画柜成人版-漫画柜禁漫天堂在线看